JLG Gradall G943A Owner Operator Manual Telehandler eRepairInfo

Jlg G9 43a Service Manual. Buy and download JLG G943A G1043A Illustrated Parts Manual G10-43A Service Manual G9-43A Service Manual; Table of contents We have 2 Instruction Manuals and User Guides for G9-43A Service Manual JLG

JLG Gradall G943A Owner Operator Manual Telehandler eRepairInfo
JLG Gradall G943A Owner Operator Manual Telehandler eRepairInfo from erepairinfo.com

Boom Lifts JLG 10VP Service And Maintenance Manual (104 pages) Boom Lifts JLG 15MVL Series Service Maintenance Manual (174 pages) View and Download JLG G9-43A operation & safety manual online

JLG Gradall G943A Owner Operator Manual Telehandler eRepairInfo

This manual contains original instructions, verified by the manufacturer (or their authorized representative) This is Original factory pdf manual and This pdf workshop Manual very clear and it is 100% printable version, contains with high quality images and diagrams, Recognized languages: English: Pages: 206: Size: 18.23 MB: Show table of contents JLG Telehandler G9-43A G10-43A Service Manual_31200151 (07/2014) JLG Telehandler G9-43A G10-43A Parts Manual_91514001 (09/2017) Related Products

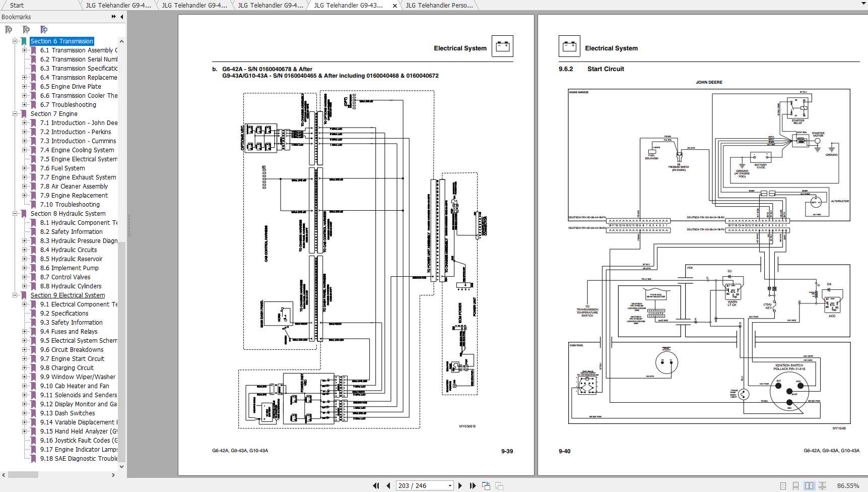
JLG Telehandler G943A G1043A Operation, Service & Parts Manuals. Serial Number: G6-42A Before S/N 0160048658 G9-43A & G10-43A Before S/N 0160048671 including 0160048773 This service manual PDF download for the G6-42A, G9-43A & G10-43A JLG Telescopic Handlers has been prepared as an aid to improve the quality of repairs by giving the serviceman an accurate understanding of the product and by showing him the correct way to perform repairs and make judgements.

Buy and download JLG G642A G943A G1043A Service Manual Telehandler. Service manual, Models • Read online or download PDF • JLG G6-42A Service Manual User Manual Page 1 Drive Axle Supplemental Repair Manual Models 943, 1043, 1055, 1255, G9-43A, G10-43A, 1644, 1732, 7013H, 8010H, 10042 & 10054 JLG - 31200239 Component Manufacturer ASM-0029E Revised March 5,.